Search Properties

Palmerston Road, Rainham, RM13 9LD

£500,000

3 x 1 x
Department:
Sales
Reference:
BRO250629
Postcode:
RM13 9LD
Type:
Semi-Detached House
Availability:
For Sale
Receptions:
2
Tenure:
Freehold
Council Tax Band:
D

Summary

Viewings start Saturday 6th December for this well-presented three-bedroom semi-detached home with a spacious lounge, separate dining room, modern fitted kitchen, landscaped rear and garage.

Details

Viewings begin Saturday 6th December for this well-presented three-bedroom semi-detached home on Palmerston Road, offering generous living space, a modern kitchen, a landscaped rear garden and a detached garage.
The ground floor features an entrance porch leading into a bright hallway, a spacious front reception room and a separate dining room with doors opening onto the garden. The kitchen is fitted with contemporary units, marble-effect worktops and a full-size range cooker, with windows to both sides bringing in plenty of
natural light.

Upstairs, there are three bedrooms, including a main bedroom with extensive fitted wardrobes, along with a modern family bathroom.
The rear garden is a key highlight neatly landscaped, with a wide patio area and a lawn bordered by established planting. There is a detached garage which offers excellent storage. The front driveway provides parking for two vehicles.

Palmerston Road is a quiet residential street within easy reach of local shops, restaurants and daily amenities on Upminster Road South. Rainham C2C station is around 0.9 miles away, providing direct services to London Fenchurch Street in approximately 25 minutes. Road links include the A1306, A13 and M25.

Nearby primary schools include Parsonage Farm Primary School and La Salette Catholic Primary School, both rated Good by Ofsted.
This is a well-located family home with great space, practical features and strong local transport connections.

Frontage

Porch

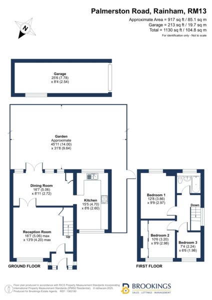
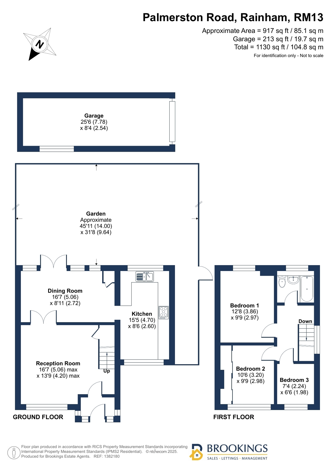
Reception Room 5.06m max x 4.20m max

Dining Room 5.06m x 2.72m

Kitchen 4.70m x 2.60m

Stairs and Landing

Bedroom One 3.86m x 2.97m

Bedroom Two 3.20m x 2.98m

Bedroom Three 2.24m x 1.98m

Bathroom

Garden 14.00m x 9.64m

Garage 7.78m x 2.54m

Floor Plans

EPC

Request Further Details

Or arrange a viewing

Real Reviews from Real Clients

Trust built on service, not slogans

Latest News & Updates

Insights, tips and stories from the people who know your property world best.

Moving with Kids? Top Tips to Make Things Easier 12th September Buying & Selling News & Article

Moving with Kids? Top Tips to Make Things Easier

Moving house is stressful for anyone, no matter what age or stage of life. As a parent, moving home gets…

Read More
What I Should Ask Before Making an Offer? 5th September Buying & Selling

What I Should Ask Before Making an Offer?

You’ve found a property you like. The viewing went well. You’re already imagining where the sofa might go and now…

Read More
Could an HMO Make You More Money? 30th August Landlords

Could an HMO Make You More Money?

As a landlord, it’s fair to say your aim is to make as much profit from your investment property as…

Read More
Quick Ways to Spruce Up Your Property for a Viewing 23rd August Buying & Selling

Quick Ways to Spruce Up Your Property for a Viewing

Keeping your house clean and tidy when you’ve got a busy household isn’t always easy, especially when you factor in…

Read More
Free 60-second online valuation